Enviar WhatsApp

Espacio Nueva York

Espacio Nueva York
Villa Urquiza

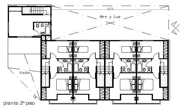
El emprendimiento propone 6 unidades de estilo moderno con alto estándar constructivo, amplios ambientes y terminaciones de primera categoría.

Ubicado en una esquina donde se adaptan unidades 1, 2 Y 3 ambientes en dúplex, únicos en la zona por su ubicación, sus dimensiones y terminaciones.

Ubicación