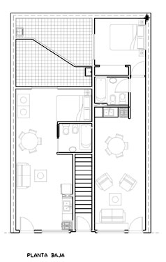
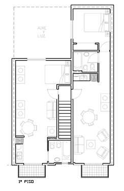
Espacio Merino
2 monoambientes amplios y 2 departamentos de 2ambientes. En planta baja cada departamento posee patio.
2 monoambientes amplios y 2 departamentos de 2ambientes. En planta baja cada departamento posee patio.